



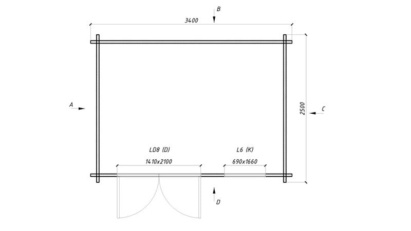
Luss 3.4m x 2.5m
Luss 3.4m x 2.5m – A Stylish Cabin for Focus, Freedom, and Everyday Calm
Looking for a space that’s yours — for work, wellness, or winding down? The Luss Cabin gives you a beautifully compact, comfortable garden room to focus, create, or just escape from the daily noise.
Forget Flimsy Sheds — This is a Cabin Built for Real Life
So many garden buildings are cold, draughty, or start to warp within a year. With the Luss, you’re investing in solid 45mm timber walls, double-glazed doors and windows, and a bitumen shingle roof designed to handle the unpredictable British weather — all in a footprint that fits almost any garden.
Compact Footprint. Big Possibilities.
The Luss might be small, but it punches above its weight. Perfect for use as a:
- Private home office
- Creative writing or art studio
- Peaceful yoga space
- Cosy reading nook
- Side-hustle base or music room
Wherever your imagination takes you, Luss gives you a solid foundation.
Cabin Specifications
| External Size | 3.4m x 2.5m (11.1ft x 8.2ft) |
| Wall Thickness | 45mm |
| Windows | Double Glazed Timber Windows |
| Doors | Double Glazed Timber Doors |
| Roof Type | Bitumen Shingles |
| Ridge Height | 2450mm |
| Wall Height | 2050mm |
| Floor and Roof Boards | 19mm |
| Floor Bearers | 45mm x 50mm |
Premium 45mm Thick Timber Walls
Designed for excellent thermal efficiency, durability, and a luxury finish.
Bitumen Shingle Roof
Strong, stylish, and built to withstand the unpredictable British weather.
Bright, Secure Windows & Doors
Double glazed as standard. Let the light in while keeping the cold out with optional uPVC upgrades.
Efficiently Designed
Makes the most of its footprint to give you a functional space for work, rest, or hobbies.
Sustainably Sourced Timber
FSC-certified Scandinavian Pine ensures your cabin is strong, attractive, and eco-conscious.

Luss 3.4m x 2.5m
Free mainland UK delivery is included in all prices. Please note, some remote areas such as the Highlands and islands may require a delivery surcharge — if this applies, we’ll confirm with you before dispatch.
Here’s how it works:
-
Built to Order
Your cabin is custom-manufactured at our European factory using slow-grown Scandinavian Pine for superior quality.
-
Shipped & Cleared
Once ready, your cabin is securely packed and shipped in a freight container. All customs and import paperwork are handled on your behalf — there’s nothing you need to do.
-
Delivered to Your Door
Once in the UK, your cabin is stored at our partner’s secure depot and scheduled for kerbside delivery using a specialist lorry with forklift (Moffett).
You’ll receive a dispatch confirmation and a call to book a delivery date (usually within 14–21 days).
You (or someone you’ve told us about in advance) must be present to accept delivery. Our delivery partner may request access photos to ensure a smooth handover.
Built for Life
We partner with trusted manufacturers who craft cabins using proven techniques and sustainably sourced materials. With the right care and setup, your cabin will remain a stylish, functional space for years to come. It’s not just a shed — it’s a smart investment in your everyday wellbeing. Please note: All images shown are for illustration purposes only. Actual product appearance may vary due to enhancements, supplier changes, or customer-selected options.

Ready to Create Your Space?
Whether you’re working from home, launching a new hobby, or simply craving more breathing space, your Clever Built Cabin is ready to bring your vision to life.
Pay a 50% deposit today to reserve your cabin and take the first step toward transforming your space.
FAQs
We know buying a cabin is a big decision — and we’re here to make it easy. Below you'll find answers to the most common questions we get asked. If you can’t find what you're looking for, don’t worry — just get in touch and we’ll be happy to help.
Do you have any showrooms I can visit?
We don’t currently have physical showrooms — and that’s a deliberate choice. By not being tied to one location, we can serve customers across the entire UK while keeping our prices competitive. Instead of spending on costly display sites, we focus on what really matters: delivering high-quality, great-looking cabins for the best possible price. So, while you won’t find us on the high street, you’ll find your budget goes further.
Can you build the cabin for me?
Yes — we offer a professional cabin assembly service, currently available across Central Scotland.
If you're based outside this area and would like to use our build service, let us know — we may be able to support you through our extended installer network or arrange a custom solution.
What is a flat pack log cabin?
A flat pack cabin is a high-quality wooden structure delivered as a kit — ready for you to build.
Think of it like adult LEGO, but with more satisfaction at the end. Every piece is precision-cut and labelled, and our easy-to-follow instructions make assembly simple for most DIYers or local tradespeople. Flat pack gives you flexibility, convenience, and cost savings — all delivered to your door.
How do I look after my log cabin?
Your log cabin is built to last — and with a little TLC, it’ll keep looking its best for years. We’ve created a simple Cabin Aftercare Guide that covers everything from treatment tips to seasonal checks.
Regular maintenance helps preserve the timber and ensures your warranty stays valid. You’ll receive this guide with your order, or you can download it here.
Do I need to insulate my log cabin?
That depends on how you’re using your cabin. For occasional use in summer, many customers are happy without insulation. But if you plan to use your cabin year-round — for work, guests, or hobbies — insulation is a smart investment.
We offer models with insulated floors, walls, and roofs, or you can add insulation yourself. Check out the handy diagram below:
Do I need planning permission for my cabin?
In most cases, no — our cabins are designed to fall within permitted development rules. As a general rule, you’re fine if:
- The cabin is under 2.5m in height (for flat roofs) or 4m (for apex roofs)
- It’s not being used as a permanent residence
- It sits behind your house and doesn’t cover more than 50% of your garden
However, rules can vary slightly by council. We always recommend checking with your local authority or visiting the Planning Portal for peace of mind.
How warm are log cabins in winter?
Timber is a natural insulator, and our log cabins are built using high-grade slow grown Scandinavian timber that retains heat well.
Add insulation and a small heater, and you’ll be surprised how cosy your cabin becomes — even in the colder months.
For all-season comfort, choose one of our insulated models or speak to us about how to upgrade yours.
Do you deliver across the UK?
Yes — we deliver nationwide and free of charge across the UK mainland.
Delivery is kerbside using our trusted partner. This means the cabin will be brought to the nearest accessible point next to your property (e.g. driveway or roadside).
Please let us know in advance if there are tight lanes, steep gradients, or limited turning space so we can plan accordingly.
⚠️ Important: Deliveries to the Scottish Highlands, Islands, Northern Ireland, and other remote areas may be subject to a surcharge and extended lead times. We’ll always confirm this with you before dispatch.
Our cabins arrive securely wrapped and palletised, and will be professionally offloaded by our experienced delivery team.
What are Clever Built Cabins made from?
All our cabins are crafted from high-grade Scandinavian Pine— a timber grown in the coldest regions of Northern Europe, where trees grow slowly and steadily.
This slower growth results in dense, fibrous wood that’s naturally strong, stable, and resistant to cracking or warping — exactly what you want in a long-lasting log cabin.
Scandinavian Pine is a favourite for premium log buildings because it:
- Has a fine grain and tight growth rings for structural strength
- Offers natural insulation and weather resistance
- Comes from FSC-certified, sustainably managed forests — so you can build your dream cabin without harming the planet
In short: it’s the ideal material for a robust, great-looking cabin that stands the test of time — and the British weather.
What can I use my cabin for?
The better question might be — what can’t you use it for?
Customers have turned their cabins into:
- Home offices or studios
- Garden bars and entertainment rooms
- Hobby workshops
- Guest bedrooms
- Kids' dens
- Gyms and yoga spaces
- Therapy rooms
- Airbnb pods (where planning allows)
Your imagination sets the limits.
Can I customise my cabin?
Absolutely. Whether it’s extra windows, a double door, higher walls, or a custom layout — we’ve got options.
You can submit a request through our Custom Cabin Builder here, or drop us a message with your ideas.
Your space, your way — just let us know what you need
